















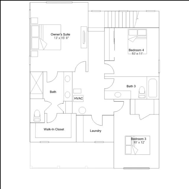
The first level of this three-level home is host to a secondary bedroom suite thats great for overnight guests or household members that need privacy. Upstairs, the Great Room, kitchen and nook are situated among a convenient and and contemporary open floorplan, with sliding glass doors that lead to a versatile covered deck. Three bedrooms are found on the homes top floor, including the luxe owners suite which is comprised of a restful bedroom, en-suite bathroom and walk-in closet.
Stay informed with Livabl updates on new community details and available inventory.