


























Get additional information including price lists and floor plans.
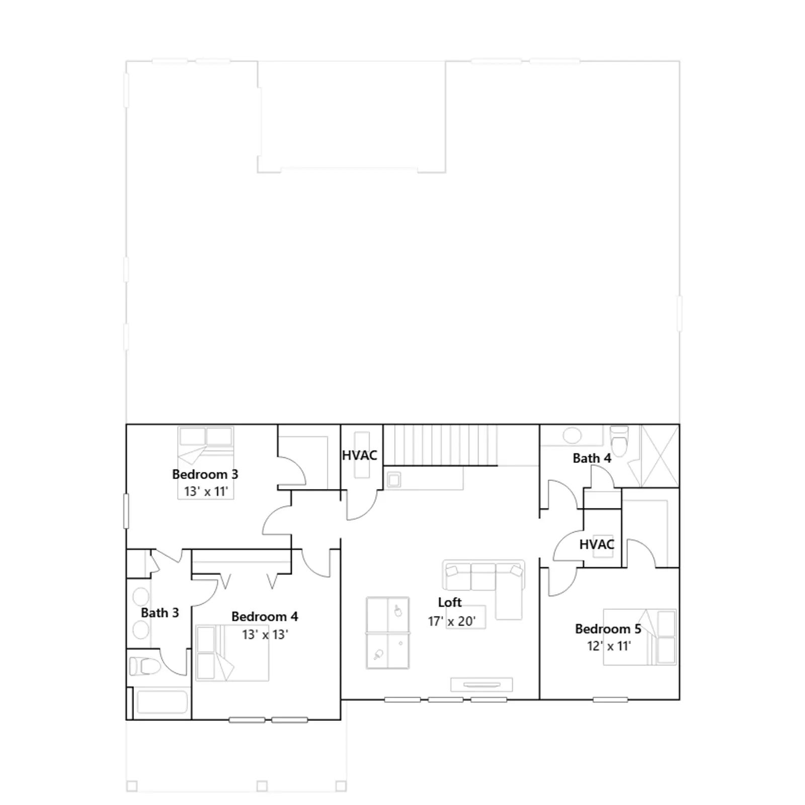
The second largest design in this collection, this two-story home features a generous open floorplan shared between the living and dining spaces on the first level. Through sliding glass doors is a covered patio for indoor-outdoor activities. The owners suite with a full-sized bathroom is privately situated toward the back, while a secondary bedroom can be found off the foyer. A spacious loft with a wet bar and three additional bedrooms occupy the top floor.
Stay informed with Livabl updates on new community details and available inventory.