







































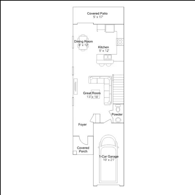
The first floor of this two-story townhome includes the expansive Great Room which has direct access to the cozy dining room, well-equipped kitchen and attached covered patio. Upstairs, a multipurpose loft divides the lavish owners suite from the additional bedroom, both of which feature private bathrooms for convenience.
Stay informed with Livabl updates on new community details and available inventory.