




































Get additional information including price lists and floor plans.
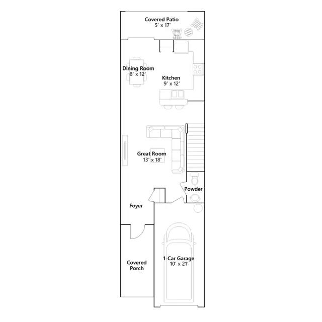
This contemporary two-story townhome enjoys a free-flowing layout among the modern kitchen, Great Room and covered patio. The top floor features the spacious owners suite, two secondary bedrooms and a versatile loft space perfect as a home office or additional shared living area.
Stay informed with Livabl updates on new community details and available inventory.