





























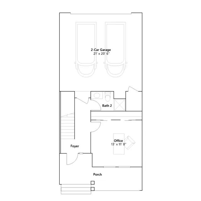
This three-story townhome thoughtfully optimizes space with a first-level guest bedroom that can double as an office. The second level offers an open design among the dining room and living room, with a well-equipped kitchen in between. The third floor includes two spacious owners suites and a versatile loft that can serve as a home gym or media room.
Stay informed with Livabl updates on new community details and available inventory.