






















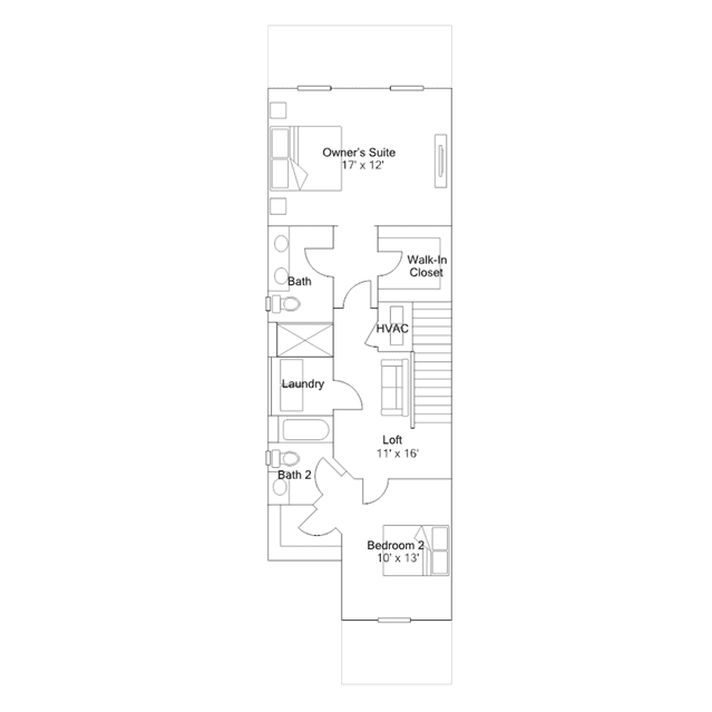
The first floor of this two-story townhome includes an expansive Great Room with direct access to the cozy nook and well-equipped kitchen, which has a covered patio attached. Upstairs, a multipurpose loft divides the lavish owners suite from the additional bedroom, both of which feature private bathrooms for convenience.