












































































Get additional information including price lists and floor plans.
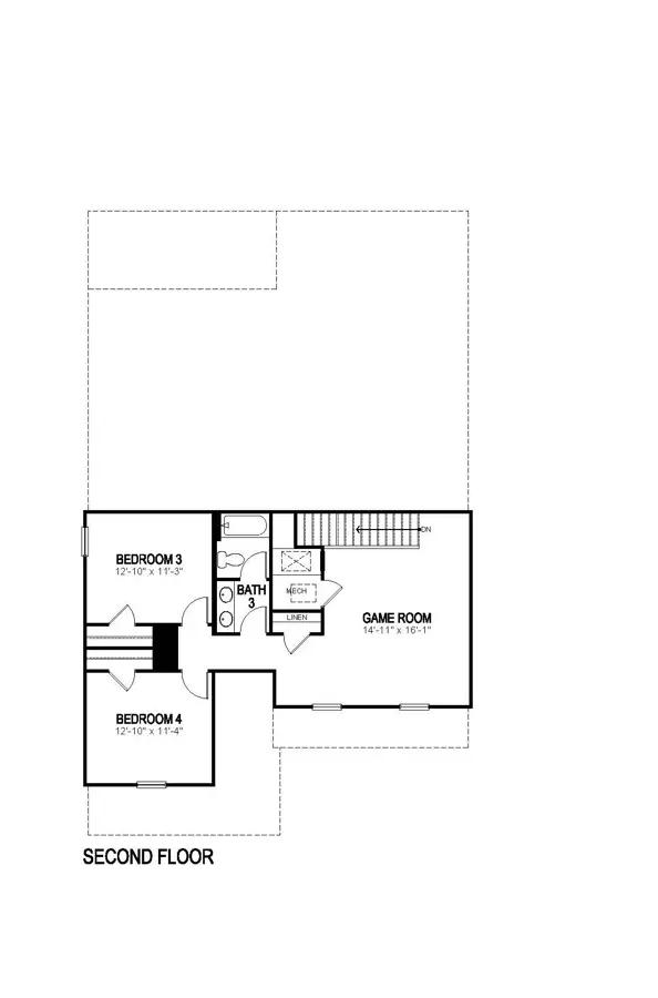
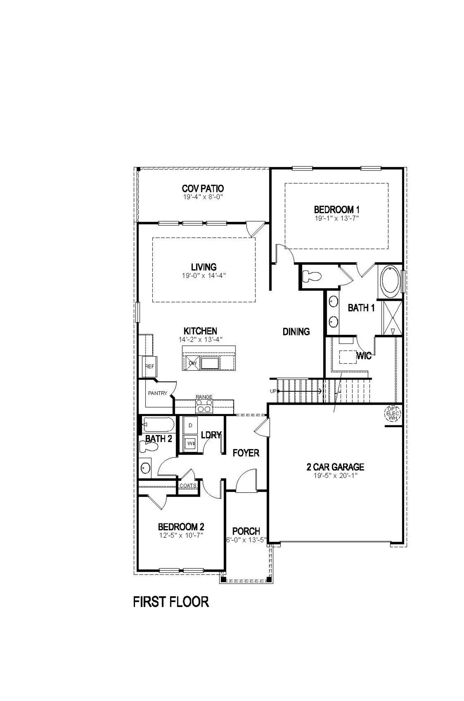
Find your home in with our Ozark floorplan in Trivento, a new home community in Zachary, La. With 2,484 sq. ft., youll have the perfect amount of space in this 4-bedroom, 3-bath layout. This home also has a study, a game room, and a 2-car garage. As you enter the home, you will immediately recognize every detail has been carefully considered. Continuing through the open-concept living area, you will find the living room, kitchen, and dining room. The transition between each room allows for unity and privacy. With smart home technology integrated into every D.R. Horton home, you can control every aspect of your living space with ease. The kitchen offers shaker-style cabinets, and gooseneck pulldown faucets in the kitchens. The chef in your family will also enjoy the stainless-steel appliances, gas range, microwave hood, dishwasher, single basin under-mount sink....
Stay informed with Livabl updates on new community details and available inventory.