


























































































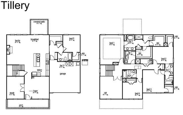
The Tillery is a two-story home offered at Westport in York, SC. This home features an open floor plan creating a spacious and inviting atmosphere. This modern two-story home offers five bedrooms, including one on main level, a study, loft, as well as four bathrooms and a two-car garage. As you step onto the porch and into the home, youll be greeted by a grand foyer that integrates the living, dining, and kitchen areas, creating an airy feel. There is also a study next to the foyer perfect for a home office. The chefs kitchen is equipped with stainless steel appliance, large granite countertops with tile backsplash, ample storage space, and a kitchen island. Downstairs offers a bedroom and full bath perfect for a guest. Escape upstairs to the primary suite, complete with a spacious bedroom area, en-suite bathroom with a soaking tub and shower, and dual walk-in...
Stay informed with Livabl updates on new community details and available inventory.