



















































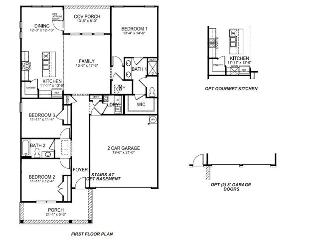
The Birch is one of the ranch plans in our Westport community in York, SC. With 6 modern elevations, there is one perfect for you. This home includes three bedrooms, two full bathrooms, and a two-car garage. The moment you step inside the home, you're greeted by an inviting foyer that leads you into the center of the home. The family room seamlessly connects with the dining room and kitchen, providing space for entertaining. The chef's kitchen has modern appliances, a pantry closet, and a kitchen island with breakfast bar. The primary suite offers an en-suite bathroom with dual vanities and a large walk-in closet. The additional bedrooms share access to a spacious secondary bathroom. Youll find a covered patio out back, perfect for outdoor entertaining or enjoying the weather. The Birch is a great ranch home that is waiting for you at Westport in York, ...