























Get additional information including price lists and floor plans.
Images coming soon
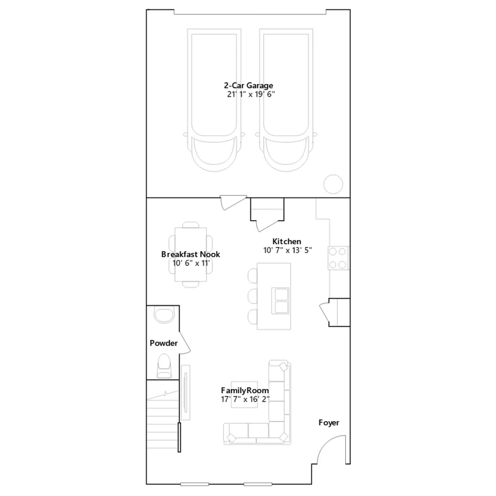
The first floor of this two-story home is host to a spacious open floorplan that connects an inviting Great Room, breakfast nook and chef-inspired kitchen. There are three bedrooms located upstairs, including the luxe owners suite, which features a spacious bedroom, en-suite bathroom and generous walk-in closet.
Stay informed with Livabl updates on new community details and available inventory.