New Homes for Sale
Articles
Professionals
Log in
Sign up
Photos 4
Videos 0
Map
Interactive floor plan 0
Virtual 0
Ambrina - 238094
By
Toll Brothers
   |  Â
Toll Brothers at Amalfi Hills - Positano Collection
Community
Get updates
Save
Request info
Request info
Community
Request info
Get updates
Save
Request info
Toll Brothers at Amalfi Hills ...
Get updates
Request info
Sold
Sold
6
6
1
5,600
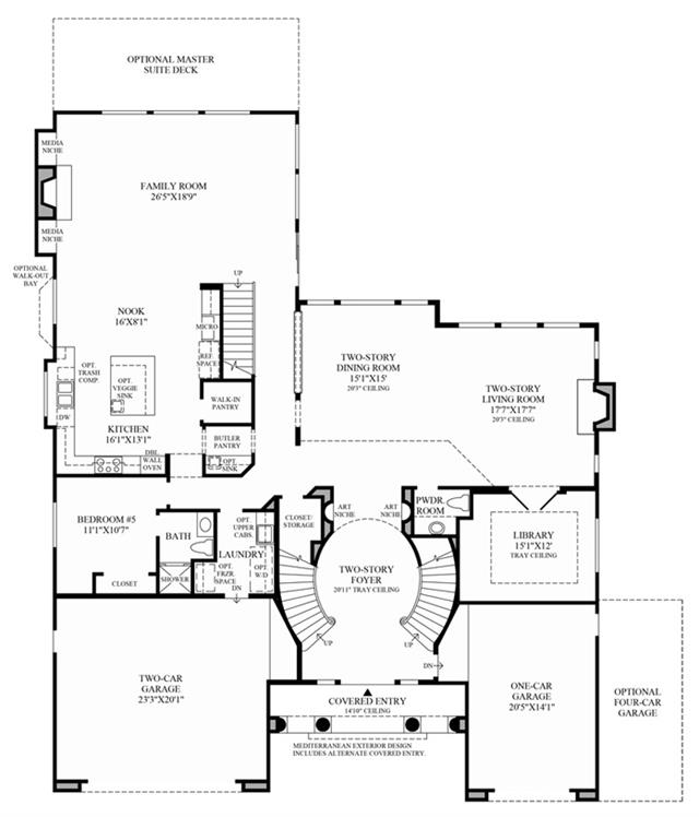
Ambrina - 238094 details
Address:
Â
Yorba Linda, CA 92886
Plan type:
Â
Detached Two+ Story
Beds:
Â
6
Full baths:
Â
6
Half baths:
Â
1
SqFt:
Â
5,600
Ownership:
Â
Fee simple
Interior size:
Â
5,600 SqFt
Lot pricing included:
Â
Yes
Ambrina - 238094 is now sold.