










































Get additional information including price lists and floor plans.
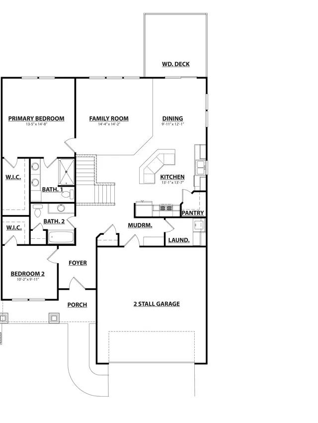
Carrington Condo Floor Plan Ranch style condo plan with open great room, dining and kitchen complete with walk-in pantry and snack ledge in curved/angled island. Primary suite features walk-in closet, private bathroom with dual-sink vanity and access to main floor laundry. Additional bedroom adds space for company or other uses (office space), as well as an additional full bathroom on the main floor. 2-Stall and 3-Stall Garage options available. The Carrington will always be an end unit. Zero-step entry available. This floorplan is available as a 2 and 3 unit in the Villas at the Ravines and Waterton Pointe neighborhoods and as a 2 unit only in the Waters Edge and Woods of Albright neighborhoods.
Stay informed with Livabl updates on new community details and available inventory.