hero-image-0
hero-image-1
hero-image-2

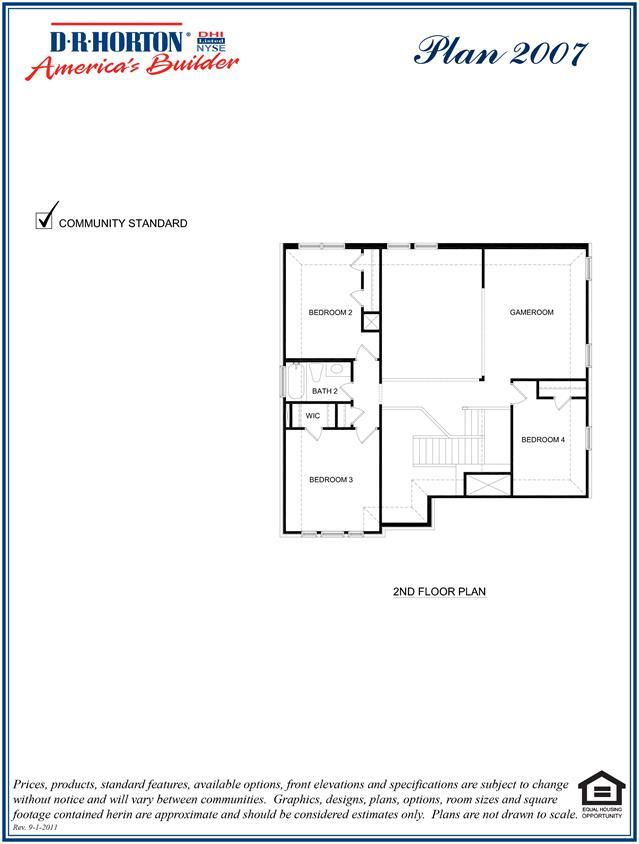
2007 Sequoia Plan

By

D.R. Horton

   |   

Wylie Lakes

Wylie Lakes
Sold
Sold
4
2
1
From 2,476
unit-banner-imageunit-banner-imageunit-banner-image
2007 Sequoia Plan details
2007 Sequoia Plan is now sold.
Check out available nearby plans below.