hero-image-0
hero-image-1
hero-image-2

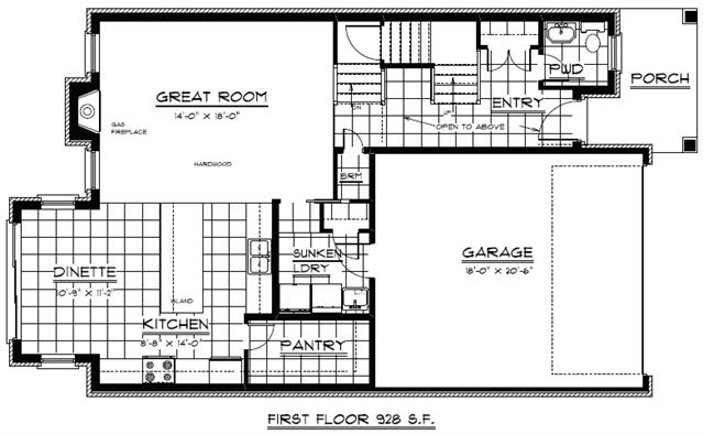
Thomson Plan

Hopewell Crossing
Featured
Not Available
Not available
Pricing unavailable
3
2
1
From 1,916
unit-banner-imageunit-banner-imageunit-banner-image
Thomson Plan details

Contact sales center

Get additional information including price lists and floor plans.

Interested? Receive updates

Stay informed with Livabl updates on new community details and available inventory.