Preston
Forrest Crossing - Forrest Crossing Townhomes
Woodstock Downtown District, Woodstock
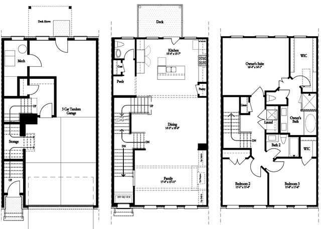
THE BARRINGTON
South on Main
The Sanctuary
Holly Springs Town Center
Holly Springs
The Haven
The Essex
Chastain Heights
Woodstock