






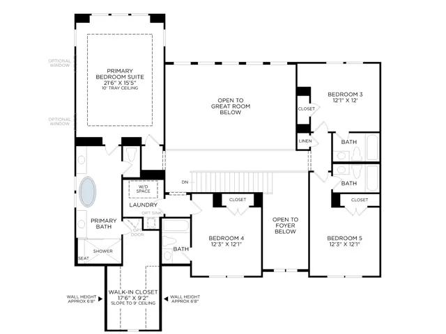
Expansive family living. The Payton's extended covered porch and inviting foyer open onto a spacious flex room and beautiful formal dining room, with views to the soaring great room and desirable large patio beyond. The well-equipped gourmet kitchen overlooks a bright casual dining area, and is highlighted by a large center island with breakfast bar, plenty of counter and cabinet space, and sizable walk-in pantry. The palatial primary bedroom suite is enhanced by an enormous walk-in closet and deluxe primary bath with dual-sink vanity, large soaking tub, luxe shower, and private water closet. Secondary bedrooms feature ample closets and private full baths. Additional highlights include a secluded first floor bedroom suite with dual closets and private full bath, convenient powder room and everyday entry, centrally located laundry, and additional storage.
Stay informed with Livabl updates on new community details and available inventory.