




















































Get additional information including price lists and floor plans.
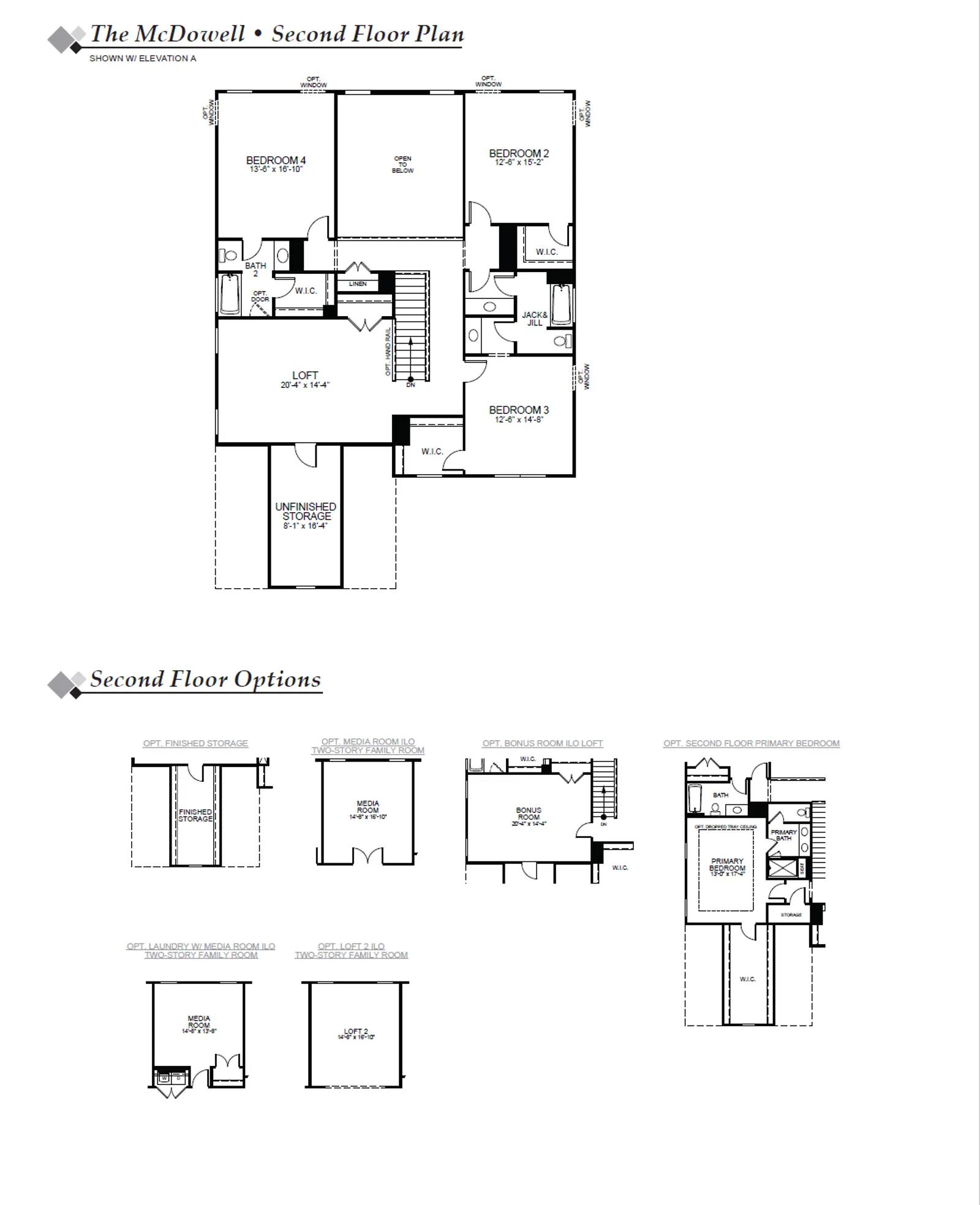
The McDowell is a two story four bedroom three and a half bath home with a first floor primary bedroom formal dining room two story family room kitchen with an island and pantry and a separate breakfast area. The second floor features three spacious bedrooms and two additional baths including a Jack and Jill bath between bedrooms two and three an oversized open loft area and an unfinished storage area. Options available to personalize this home include an alternate kitchen layout with a butler s pantry a guest suite with a full bath or an office instead of the formal dining room a sunroom screen porch or covered rear porch an additional upstairs loft area or a media room an additional laundry room with the media room option a bonus room instead of the open loft or a second primary bedroom with full bath.
Stay informed with Livabl updates on new community details and available inventory.