






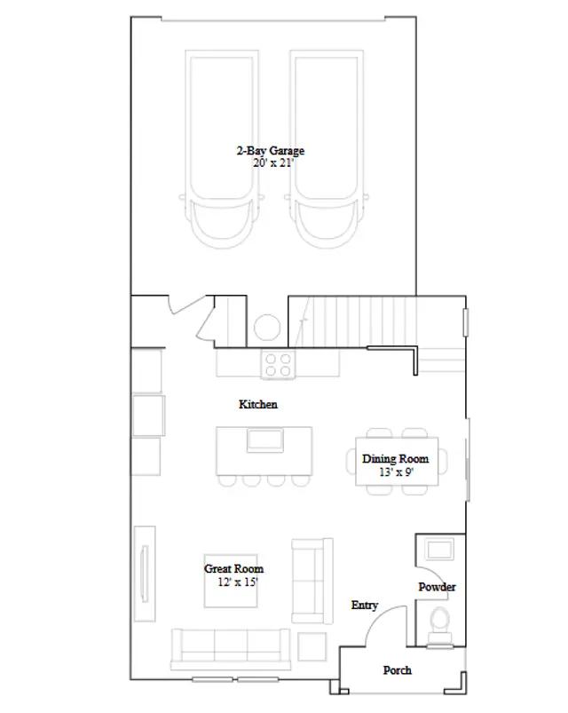
This new two-story home is host to an inviting open-concept floorplan on the first level, combining the kitchen, living and dining areas for simple transitions and everyday multitasking. All three bedrooms are located on the second floor, including the lavish owners suite at the front of the home, complete with a full bathroom and walk-in closet.
Stay informed with Livabl updates on new community details and available inventory.