





































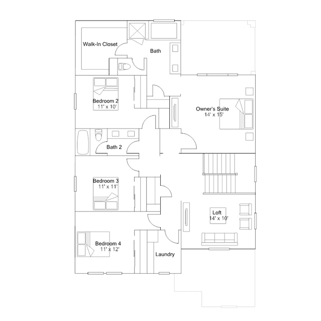
This two-story home offers contemporary living showcasing a sweeping design that joins the first-floor living spaces, ideal for gatherings of any kind. A stylish California Room opens from the Great Room, extending living space outdoors, and a flexible bedroom is lovely for a tucked away office. Upstairs are a versatile loft and four more bedrooms, including the lavish owners suite.