














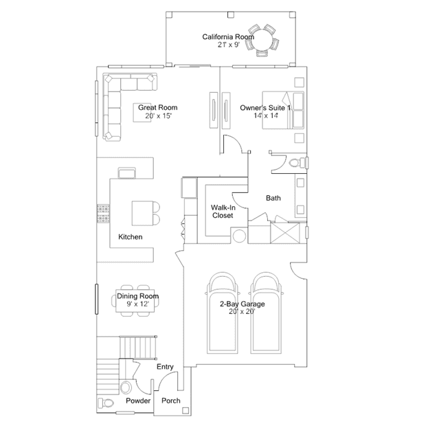
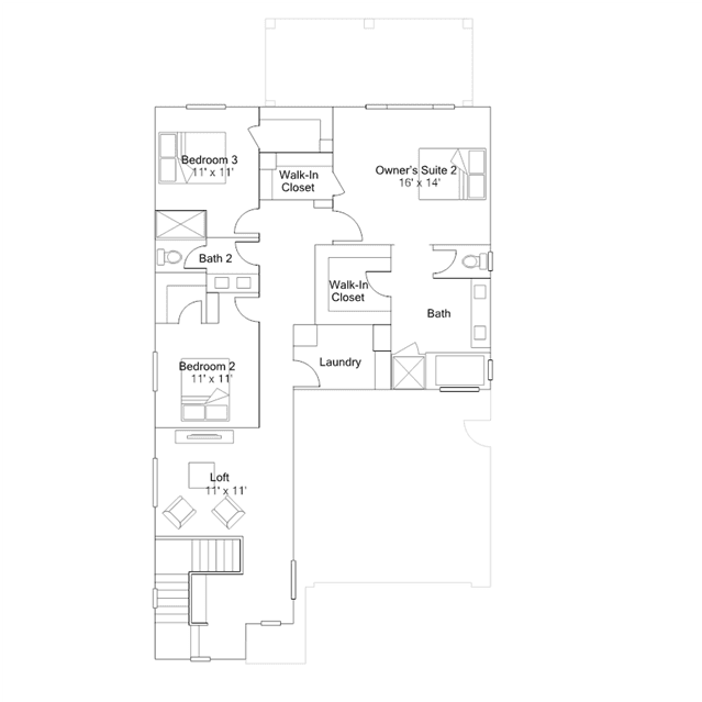
The largest home in the collection, this two-story plan features an owners suite on each level and a flowing living setup that offers views from the dining room to the kitchen, Great Room and adjoining California Room. An owners suite enjoys privacy as the sole bedroom on the first floor, while upstairs boasts more bedrooms and a second owners suite.