














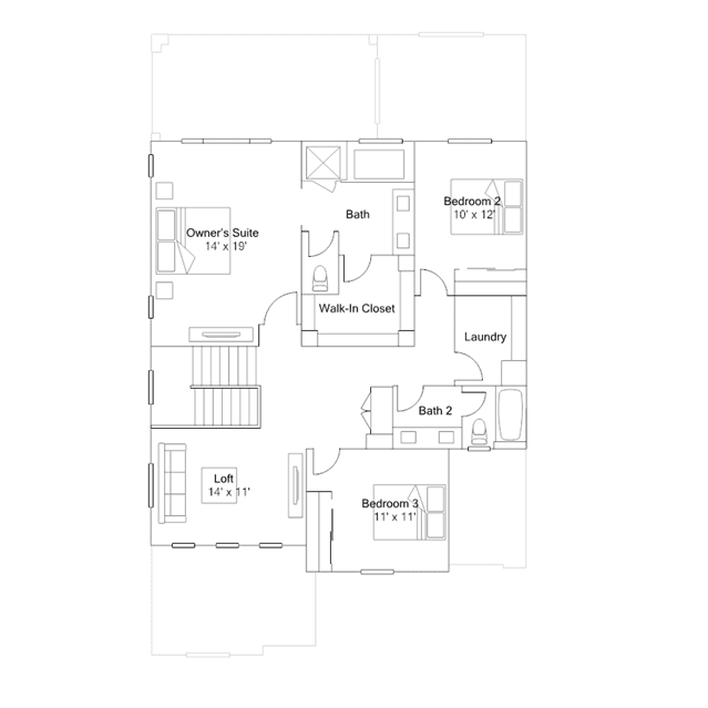
This two-story home features a flexible bedroom near the entry thats perfect for an office or guest space, and luxe California Room that extends living and gathering space outdoors. An open-concept living area contains the kitchen, dining room and Great Room, while the second floor hosts a spacious loft, two secondary bedrooms and the lavish owners suite.