














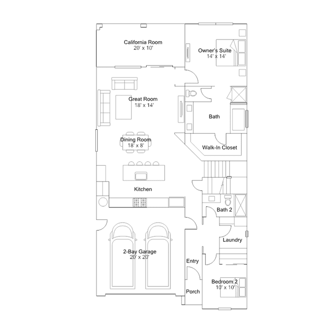
The first floor of this two-story home encourages gathering with views of the adjoining California Room from the open-plan kitchen, dining room and Great Room. A versatile bedroom is conveniently located near the entryway, and the owners suite is privately nestled at the end of the first floor. The versatile second floor has a loft and secondary bedroom that offers increased privacy.