





































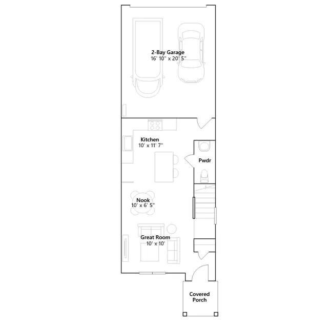
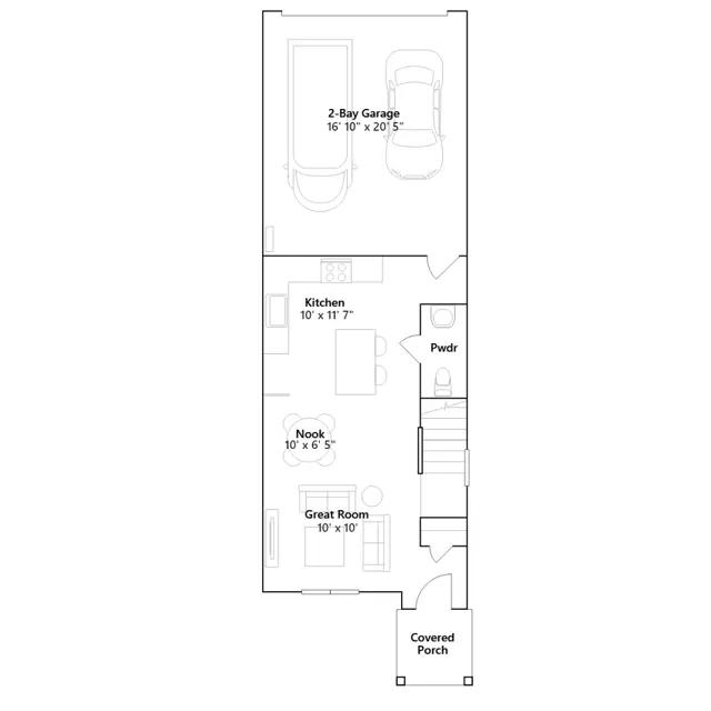
The first floor of this two-story home shares an open layout between the kitchen, nook and Great Room for easy entertaining with convenient access to a powder room. Upstairs are two secondary bedrooms, ideal for residents and overnight guests, surrounding a versatile loft that can easily transform to meet the household's needs. A luxe owner's suite is at the front of the second floor and enjoys an en-suite bathroom and a walk-in closet.
Stay informed with Livabl updates on new community details and available inventory.