

















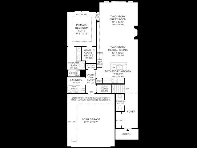
The expertly designed Pierpont immediately impresses with its elegant two-story main living level, featuring a bright foyer and hallway that leads into the spacious great room that offers convenient access to the rear yard. The well-equipped kitchen overlooks a sizable casual dining area and is complemented by a large center island with breakfast bar, plenty of counter and cabinet space, as well as a sizable pantry. Tucked away on the first floor, the lovely primary bedroom suite offers a roomy walk-in closet and a beautiful primary bath featuring a dual-sink vanity, a large luxe shower with seat, and a private water closet. Secondary bedrooms, one with a walk-in closet, share a hall bath and are central to a sizable loft space. A generous unfinished storage area is also featured on the second floor with additional highlights including conveniently located laund...
Stay informed with Livabl updates on new community details and available inventory.