




Get additional information including price lists and floor plans.


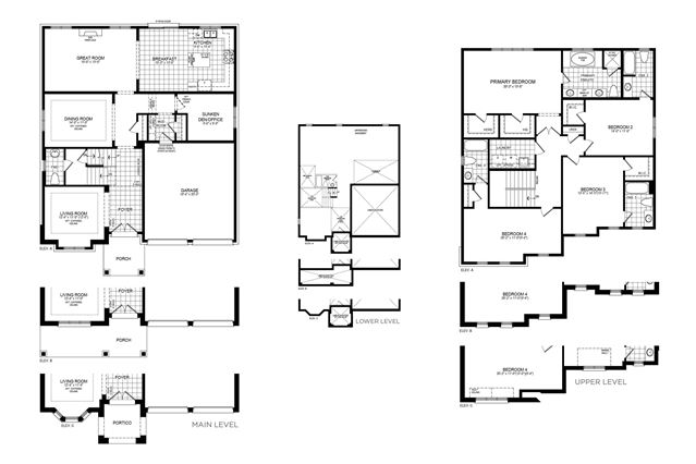
Luxurious brick and stone home featuring elegant dual gables, spacious balcony, and premium finishes throughout. 3,603 sq. ft. with walkup basement, side entry, and rear deck Experience luxury living in the prestigious Spring Valley Estates community. This 5 Beds bedroom, 5½ Baths bathroom home spans 3,603 square feet on a 41ft lot and includes premium finishes throughout. The open-concept main floor features a gourmet kitchen with quartz countertops, a spacious great room, and a formal dining area perfect for entertaining. Source: Spring Valley Estates
Stay informed with Livabl updates on new community details and available inventory.