












































Get additional information including price lists and floor plans.
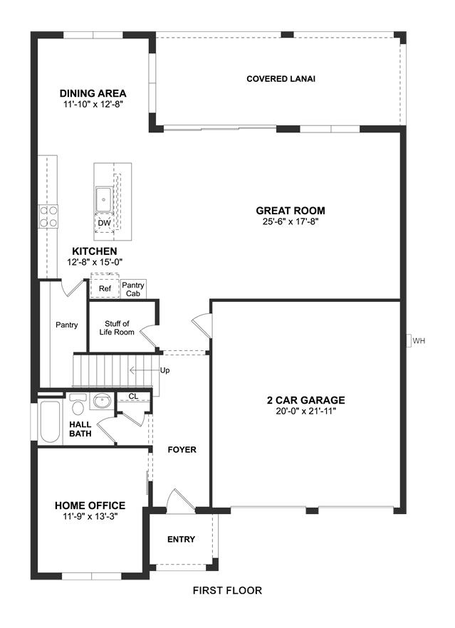
Private home office for studying or telecommuting. Open-concept kitchen with center island and huge pantry. Spacious covered lanai for outdoor entertaining. Versatile loft, great for relaxing or game nights. Convenient laundry room in proximity to bedrooms. Stunning primary suite with large walk-in closet and elegant bath.
Stay informed with Livabl updates on new community details and available inventory.