Suite D
Le Parc I & II
Cloutier Drive, Winnipeg
Suite B
Suite E
Suite A
Suite G
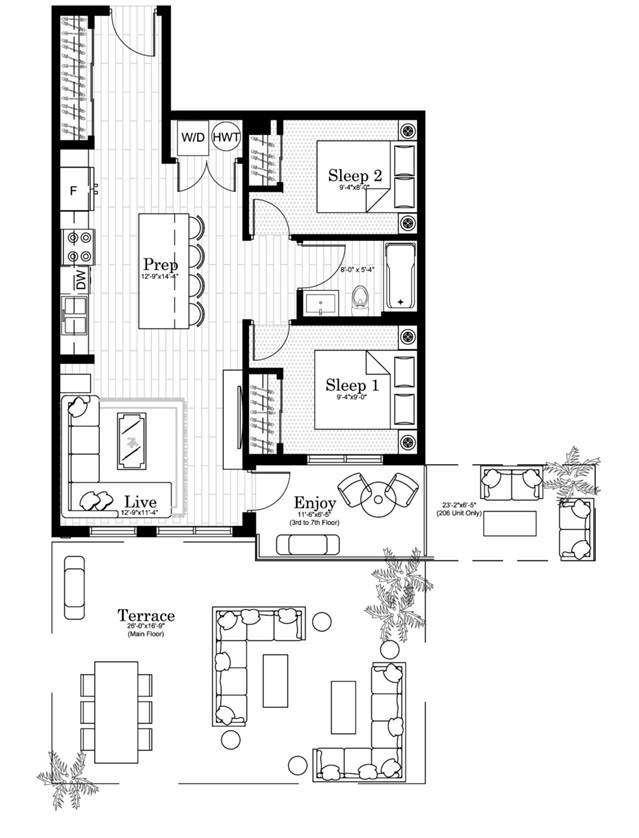
A2
The Banks Condominiums
River Park South, Winnipeg
THE BRISTON
Sienna Condominiums
Waverley West B, Winnipeg
THE ASHFORD