hero-image-0
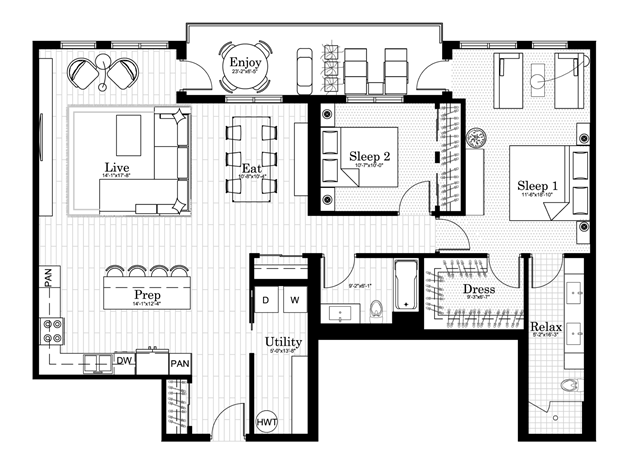
The Rise - Phase 2
Sold
Sold
3
2
From 1,561
unit-banner-imageunit-banner-imageunit-banner-image
Everest Plan details
Everest Plan is now sold.
Check out available nearby plans below.