Suite A
Le Parc I & II
Cloutier Drive, Winnipeg
Suite D
Suite G
Suite B
Suite E
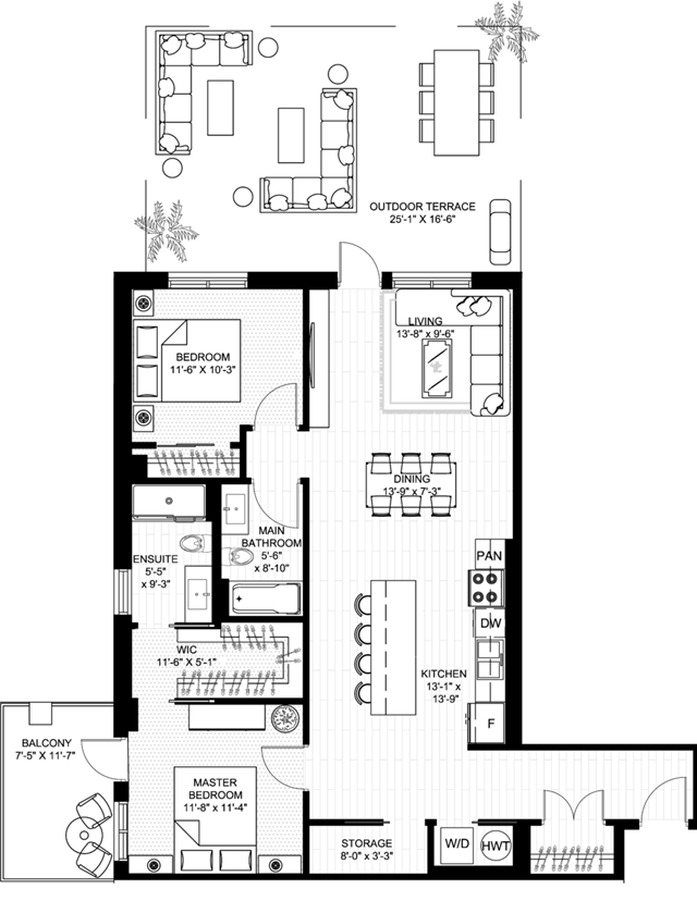
THE ASHFORD
Sienna Condominiums
Waverley West B, Winnipeg
THE BRISTON
C2
The Banks Condominiums
River Park South, Winnipeg