hero-image-0
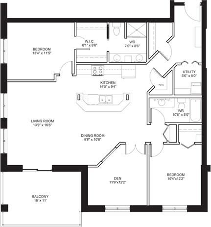
The Oxbow on the Seine Phase 3
Sold
Sold
2
2
1
From 1,432
unit-banner-imageunit-banner-imageunit-banner-image
Emerge Plan details
Emerge Plan is now sold.
Check out available nearby plans below.