hero-image-0

204 - The Harvard

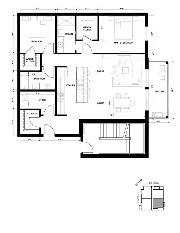
The McMillan
Sold
Sold
2
2
1,192
204 - The Harvard details
204 - The Harvard is now sold.
Check out available nearby condos below.