hero-image-0
Stonecrest Condominiums
Sold
Sold
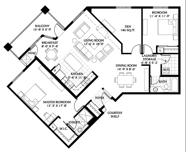
2
1
From 1,554
unit-banner-imageunit-banner-imageunit-banner-image
H1: Rohe Plan details
H1: Rohe Plan is now sold.
Check out available nearby plans below.