hero-image-0
Mode Tache
Sold
Sold
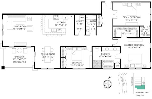
2
2
1
1,992
Suite 200 details
unit-banner-image
unit-banner-image
unit-banner-image
Suite 200 is now sold.
Check out available nearby condos below.