hero-image-0

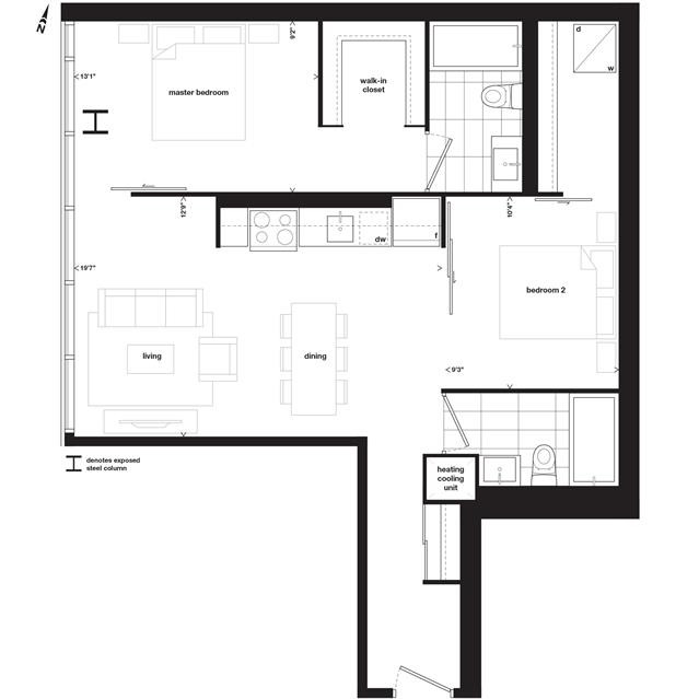
C7 Plan

Glasshouse Lofts
Sold
Sold
2
2
From 858
unit-banner-imageunit-banner-imageunit-banner-image
C7 Plan details
C7 Plan is now sold.
Check out available nearby plans below.