hero-image-0
Flora North Condominiums
Sold
Sold
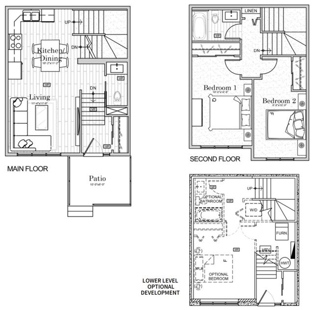
2
1
1
979
604 details
604 is now sold.
Check out available communities below.