



























Images coming soon
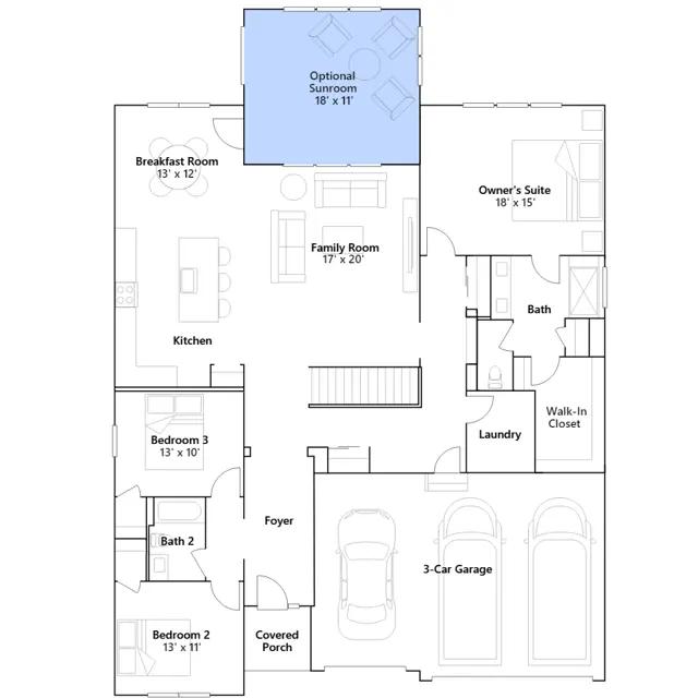
This new single-story home showcases a stylish ranch layout with a three-car garage. An open-concept design seamlessly connects the family room, gourmet kitchen and dining room, which provide direct access to a covered patio. Two secondary bedrooms and the owners suite all feature walk-in closets. Adding a sunroom is an option at select homesites.
Stay informed with Livabl updates on new community details and available inventory.