hero-image-0
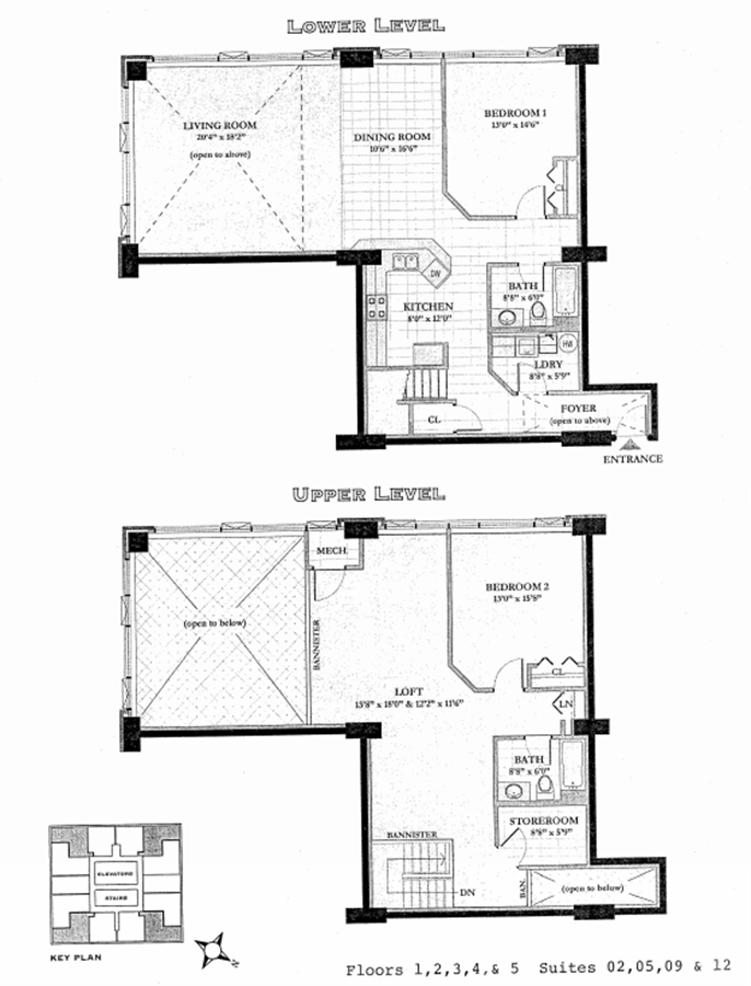
Club Lofts Condominium
Sold
Sold
2
2
2,415
Walker 402 details
unit-banner-image
unit-banner-image
unit-banner-image
Walker 402 is now sold.
Check out available nearby condos below.