






















































Get additional information including price lists and floor plans.
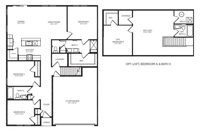
Looking for a beautiful home that meets all your needs? Look no further than the Freeport! This stunning 1,492 square foot residence features three bedrooms, two baths, and a convenient two-car garage, all designed with your active adult lifestyle in mind. As you step into the foyer, you are greeted by the open-concept kitchen and living area with plenty of space for cooking, dining, and relaxing. The kitchen comes equipped with a walk-in corner pantry, stainless steel appliances, and a modern island that serves as the perfect prep space. The primary suite is nestled at the back of the home, featuring a spacious walk-in closet and an en-suite bathroom. Two additional bedrooms in the front of the home provide versatility and privacy. And with the laundry room conveniently located off the main foyer, you'll have everything you need right at your fingertips....
Stay informed with Livabl updates on new community details and available inventory.