Residence 2009
Laguna Pointe
Lake View District, Lake Elsinore
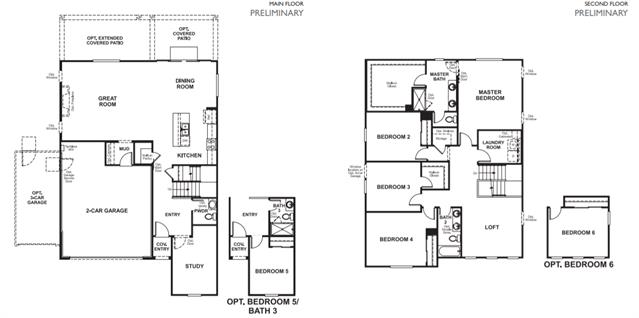
Torrey Plan 4
Echo Highlands
Lake View, Lake Elsinore
Residence 2239
Avalino
Wildomar
Residence 1898
Residence 1900
Residence 2
Highland at Nichols Ranch
Lake Elsinore
Plan 6
Sky View
Menifee
Residence 3