


























Get additional information including price lists and floor plans.
Images coming soon
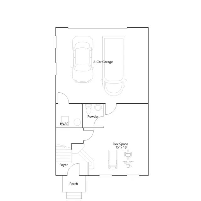
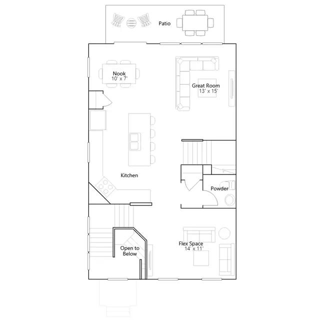
This three-story townhome is host to a first-floor basement that can function as a home gym or entertainment space. The second level features an open layout among the kitchen, Great Room and nook with access to a balcony and separate flex room. All three bedrooms are on the topmost floor, offering privacy from the hustle and bustle of the open space.
Stay informed with Livabl updates on new community details and available inventory.