hero-image-0

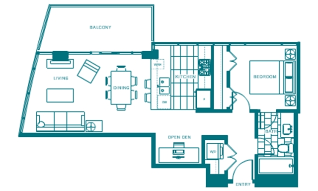
B Plan

Avra
Sold
Sold
1
1
1
From 690
unit-banner-imageunit-banner-imageunit-banner-image
B Plan details
B Plan is now sold.
Check out available nearby plans below.