



























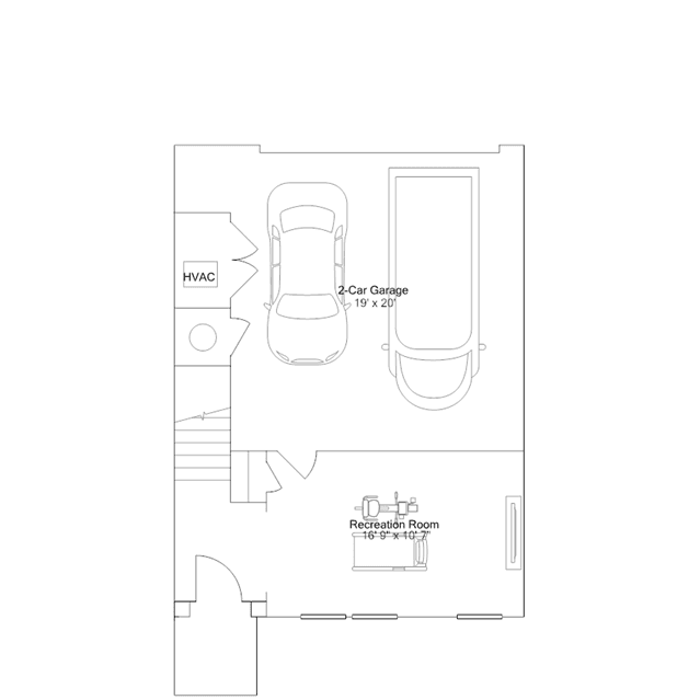
The first floor of this three-story home features a spacious recreation room and two-car garage. Upstairs, an inviting open floorplan combines a modern kitchen, inviting Great Room, dining area and flex space, with the choice to add an optional deck. Three bedrooms can be found on the top level, including the luxe owners suite.