
































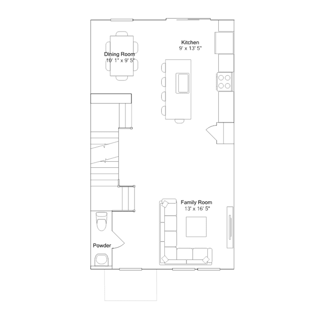
This three-story townhome features a first-floor recreation room with access that leads to the backyard for an extra entertaining area. Upstairs is an open layout in the family room, dining room and kitchen, while the top floor features all three total bedrooms, each with its own stunning cathedral-style ceiling.