



































































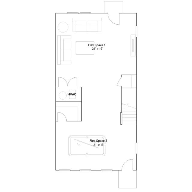
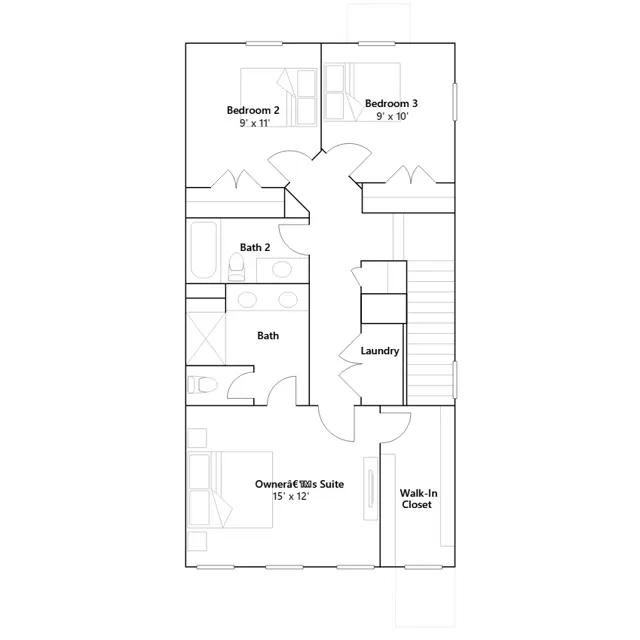
This three-story townhome was designed with family living and entertaining in mind. The first floor is host to a spacious flex space and a recreation room with a backyard entrance, while upstairs is an open family room, kitchen and dining room that allow for effortless flow between spaces. All three bedrooms are situated on the third floor.
Stay informed with Livabl updates on new community details and available inventory.