E705
EverHome Markham - North and South Buildings
Berczy, Markham
N504
N501*
E304
N108
S108
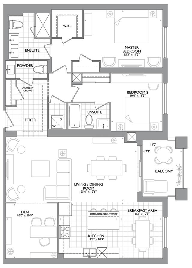
A-PH-08
Joy Station - Tower A
Greensborough, Markham
A-2309
Royal Pine Homes offers 5 percent deposit until occupancy for homebuyers at Hampton Place in Stouffville
The development is already 85 percent sold and occupancy is scheduled for 2019.