N504
EverHome Markham - North and South Buildings
Berczy, Markham
E705
N108
E304
S108
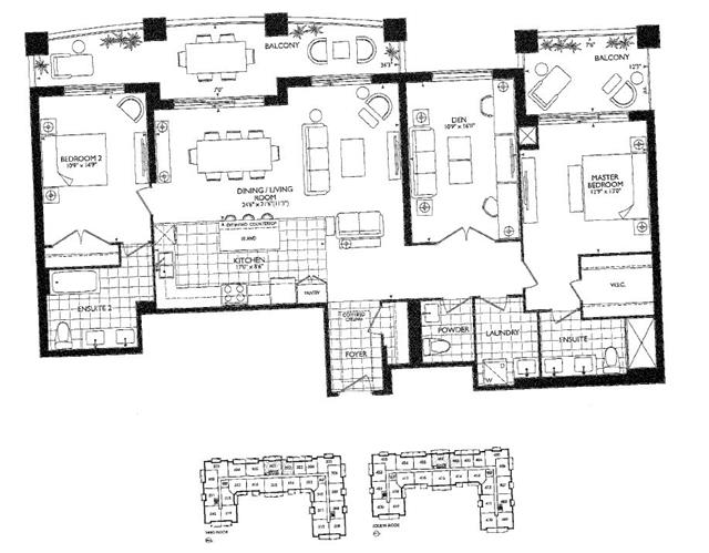
N501*
EverHome Markham
N501
Royal Pine Homes offers 5 percent deposit until occupancy for homebuyers at Hampton Place in Stouffville
The development is already 85 percent sold and occupancy is scheduled for 2019.