hero-image-0

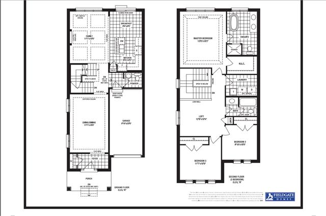
Bluebird Plan

By

Fieldgate Homes

   |   

Blue Sky

Blue Sky
Sold
Sold
3
2
1
From 2,045
unit-banner-imageunit-banner-imageunit-banner-image
Bluebird Plan details
Bluebird Plan is now sold.
Check out available nearby plans below.