





















































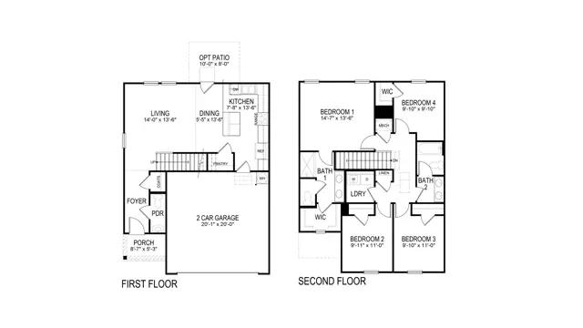
TheTaylorfloor plan offers a generous 1,613 square feet of space, featuring 4 bedrooms and 2.5 bathrooms for a comfortable living experience. This home boasts a dining room and a chef-inspired kitchen with ample cabinet space and a large pantry for convenient storage. The kitchen seamlessly opens onto a casual dining area and a spacious living room, creating a welcoming and functional living space for relaxing and entertaining. Additionally, the main level includes a convenient powder room for guests, ensuring practicality and comfort for visitors. Moving to the second level, the expansive Bedroom One suite boasts a luxurious bathroom equipped with a walk-in shower, double vanities, and a sizable walk-in closet, providing a luxurious retreat within the home. The second level also comprises 3 more bedrooms, another full bathroom, and a dedicated laundry room for a...
Stay informed with Livabl updates on new community details and available inventory.