hero-image-0
hero-image-1
hero-image-2

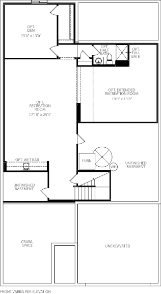
CLEARWATER Plan

Wood Wind - Southwind
Sold
Virtual Tours
Sold
2
2
From 2,144
CLEARWATER Plan details
CLEARWATER Plan is now sold.
Check out available nearby plans below.