
































Get additional information including price lists and floor plans.
Images coming soon
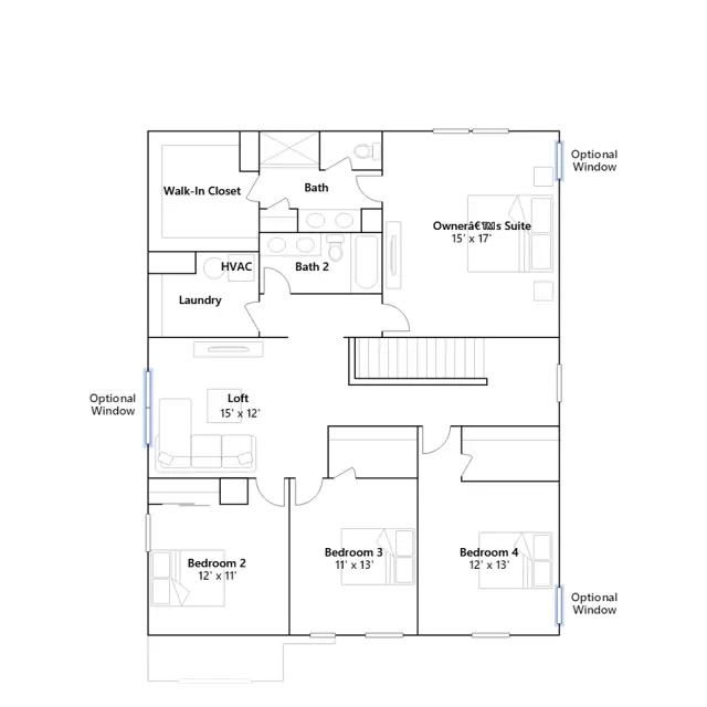
This two-story home is ideal for families and features a convenient first-floor bedroom, ideal for overnight guests, along with a private study and an open layout shared between the kitchen, dining area and Great Room. The second level includes a versatile loft surrounded by four spacious bedroomsthree of which feature walk-in closets. The upper-level owners suite is complemented by an attached private bathroom.
Stay informed with Livabl updates on new community details and available inventory.